Découvrir le bien

Fontenay-le-Fleury (78330) APPARTEMENT 4/5 PIÈCES À VENDRE À FONTENAY LE FLEURY ( PARC MONTAIGNE)

Réf : 2073 267 000 €

Appartement 4/5 pièces niché dans un écrin de verdure bénéficiant d'une situation exceptionnelle au coeur du Parc Montaigne !

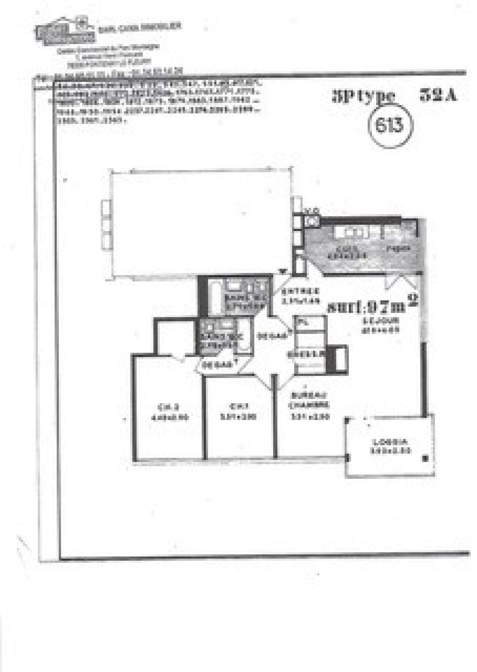
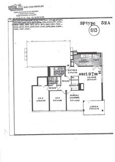
Venez découvrir ce bel appartement familial de 89 m² carrez (97 m² habitable) offrant une entrée avec placards, un double séjour lumineux, une cuisine aménagée et équipée, un dégagement avec dressing desservant une salle de bains avec WC suspendu, deux chambres et une suite parentale avec son dressing attenant et sa salle de douche avec WC. Vous disposez également d'une cave et d'une place de parking extérieure. Un plan du bien est joint en annexe vous permettant d'apprécier pleinement la disposition des pièces et le potentiel de chaque espace.

** SES ATOUTS **

- Sa situation géographique : dans un square recherché du Parc Montaigne, dans un environnement arboré,

- Prestations : double vitrage (DPE D) / porte blindée / nombreux rangements / agencement optimisé / cave / parking.

Au coeur d'une résidence de standing, verdoyante, sécurisée et très bien entretenue. Gardiennage 24h/24, ascenseur, nombreux équipements de loisirs : piscine chauffée, courts de tennis, mini-golf, aire de jeux, etc.

Emplacement idéal : à 2 pas de la crèche, des écoles élémentaire et maternelle et du collège, à 5 minutes des commerces, du marché couvert. Arrêt de bus au pied de l'immeuble pour rejoindre en 5 minutes la Gare de Fontenay-le-Fleury ralliant Paris-Montparnasse en 30 minutes par la ligne N, Versailles-Chantiers en 10 minutes, Saint-Cyr-l'Ecole (ligne U, RER C, tram 13) en 5 minutes pour les liaisons vers la Défense, Paris centre et Saint-Germain-en-Laye.

Prix de vente : 267 000€ honoraires d’agence inclus, soit 255 000€ hors honoraires d’agence et 4,71% d’honoraires TTC à la charge de l’acquéreur.

La présente annonce immobilière vise 3 lots situés dans une copropriété ne faisant l'objet d'aucune procédure en cours et d'un montant de charges d'environ 5820€ par an (soit 485€ mensuel) déclaré par le vendeur.

Information d'affichage énergétique sur ce bien : classe ENERGIE D indice 222 et classe CLIMAT D indice 47. Montant estimé des dépenses annuelles d'énergie pour un usage standard : entre 1350€ et 1870€ par an. Prix moyens des énergies indexés sur l'année 2021, 2022 et 2023 (abonnements compris).

Les informations sur les risques auxquels ce bien est exposé sont disponibles sur le site Géorisques : georisques. gouv. fr.

Cet appartement vous est proposé par l'Agence CAMA Immobilier à Fontenay-le-Fleury. Spécialisée dans la transaction immobilière et la location de biens sur FONTENAY-LE-FLEURY et ses environs, CAMA Immobilier diffuse quotidiennement ses annonces immobilières sur toutes les plateformes en ligne pour une visibilité optimale de vos biens à FONTENAY-LE-FLEURY. Les conseillers de CAMA Immobilier mettent à votre disposition leur parfaite connaissance du secteur de FONTENAY-LE-FLEURY, leur expertise, leur réseau de partenaires de confiance (courtiers, diagnostiqueurs, artisans, notaires) pour une mise en vente de votre bien dans les meilleures conditions à FONTENAY-LE-FLEURY.


Les informations sur les risques auxquels ce bien est exposé sont disponibles sur le site Géorisques
TRAD_SIROCCO_Caracteristique Valeurs
Code postal 78330
Surface habitable (m²) 97 m²
Surface loi Carrez (m²) 89 m²
Nombre de chambre(s) 3
Nombre de pièces 5
Etage 1
Ascenseur OUI
Vue Verdoyant et sans vis-à-vis
TRAD_SIROCCO_Caracteristique Valeurs
Nb de salle de bains 1
Nb de salle d'eau 1
Cuisine Séparée
Type de cuisine Equipée
Mode de chauffage Gaz de ville
Type de chauffage Au sol
Format de chauffage Collectif
Interphone OUI
Visiophone OUI
Balcon OUI
Cave OUI
Nombre de parking 1
Année de construction 1964
Quartier Le Parc Montaigne
TRAD_SIROCCO_Caracteristique Valeurs
Copropriété OUI
Lot n° 2266
nombre de lots 3119
Quote Part annuelle des charges 5 820 €
plan de sauvegarde NON
statut du syndic pas de procédure en cours
TRAD_SIROCCO_Caracteristique Valeurs
Prix de vente honoraires TTC inclus 267 000 €
Prix de vente honoraires TTC exclus 255 000 €
Honoraires TTC à la charge acquéreur 4,71 %
Charges 485 €
Taxe foncière annuelle 1 797 €
DPE GES

Montant estimé des dépenses annuelles d'énergie pour un usage standard est compris entre 1 350 € et 1 870 € . Prix moyens des énergies indexés sur les années 2021, 2022 et 2023 (abonnements compris).

  • Commerces et santé
  • Loisirs
  • Ecoles
  • Transports
  • Pratique

Nos outils

Imprimer
Intéressé(e) par Ce bien ?

* Champ obligatoire

contacter l'agence

Les informations recueillies sur ce formulaire sont enregistrées dans un fichier informatisé par La Boite Immo agissant comme Sous-traitant du traitement pour la gestion de la clientèle/prospects de l'Agence / du Réseau qui reste Responsable du Traitement de vos Données personnelles. La base légale du traitement repose sur l'intérêt légitime de l'Agence / du Réseau. Elles sont conservées jusqu'à demande de suppression et sont destinées à l'Agence / au Réseau. Conformément à la loi « informatique et libertés », vous disposez des droits d’accès, de rectification, d’effacement, d’opposition, de limitation et de portabilité de vos données. Vous pouvez retirer votre consentement à tout moment en contactant directement l’Agence / Le Réseau. Consultez le site https://cnil.fr/fr pour plus d’informations sur vos droits. Si vous estimez, après avoir contacté l'Agence / le Réseau, que vos droits « Informatique et Libertés » ne sont pas respectés, vous pouvez adresser une réclamation à la CNIL. Nous vous informons de l’existence de la liste d'opposition au démarchage téléphonique « Bloctel », sur laquelle vous pouvez vous inscrire ici : https://www.bloctel.gouv.fr Dans le cadre de la protection des Données personnelles, nous vous invitons à ne pas inscrire de Données sensibles dans le champ de saisie libre.
Ce site est protégé par reCAPTCHA, les Politiques de Confidentialité et les Conditions d'Utilisation de Google s'appliquent.

Ces biens peuvent aussi vous intéresser
Fontenay-le-Fleury (78330)

APPARTEMENT 5/6 PIÈCES À VENDRE À FONTENAY-LE-FLEURY

Exclusif
Coup de coeur
Fontenay-le-Fleury (78330)

Maison de ville atypique à Fontenay-le-Fleury. 3 chambres...

Nous suivre sur